Beschreibung
Objektbeschrieb
Die Stockwerkeigentümergemeinschaft besteht aus vier Häusern mit je nur 6 Wohneinheiten auf 3 Etagen und damit überschaubaren Eigentümerverhältnissen. Die Häuser stehen auf einem überdurchschnittlich grossen Grundstück, welches auf der Ostseite über eine grosse Grünfläche mit schönem, altem Baumbestand verfügt. Vom Wohnzimmer und vom grossen Schlafzimmer schauen Sie auf diese Grünfläche mit einem kleinen Gartenteich und einer Pergola mit Grillstelle. Die Immobilie ist insgesamt mit allen gemeinsam benutzen Räumen und Flächen gut gepflegt.
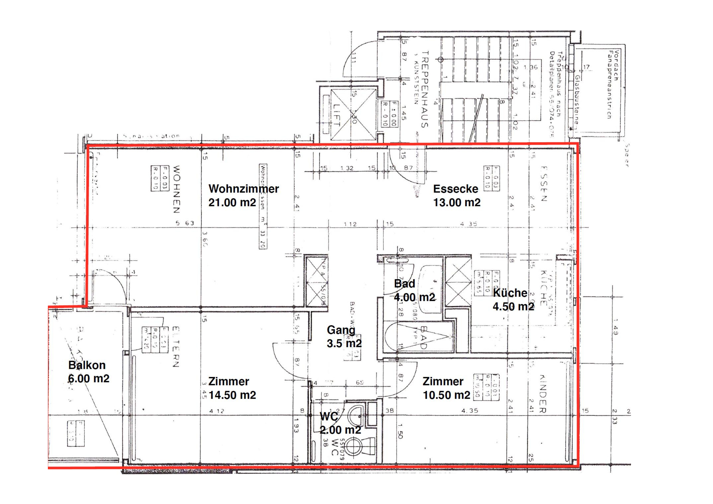
Die helle, lichtdurchflutete 3.5-Zimmerwohnung befindet sich im ersten Stock, welche bequem mit dem Lift zu erreichen ist. Die Wohnräume sind nach Osten und Westen orientiert und hell. Auf dem nach Osten ausgerichteten Balkon können Sie die Morgensonne geniessen und beschauliche Stunden verbringen.
Die rund 79 m2 Wohnfläche inkl. Balkon sind sinnvoll eingeteilt. Vom Entrée gelangt man in den Wohn-/Essbereich mit offener Küche und angrenzendem Balkon. Der Gang führt in den hinteren Wohnungsteil mit Badezimmer, Schlafzimmer, ein weiteres Zimmer sowie zur separaten Toilette. Praktische Einbauschränke im Gang und im Bad bieten viel Stauraum.
Die gepflegte, hochwertige Küche zeichnet sich durch langlebige Materialien aus. Die Küchenfronten sind in Echtholz und die Arbeitsflächen in Granit ausgeführt. Die Einbaugeräte Kühl-/Gefrier-Kombination, Backofen und Mikrowelle der Marken Elektrolux/FUST, wurden 2025 erneuert. Der Kochbereich ist mit einem modernen CERAN-Kochfeld mit Induktionskochplatten ausgestattet. Die Geschirrspülmaschine ist sinnvoll unter der Arbeitsfläche integriert.
Im Entrée, im Wohn-/Essbereich und in den Zimmern ist ein Parkettboden im Würfelmuster verlegt, welcher sich in einem sehr gepflegten Zustand befindet. Die Küche, das Badezimmer und die Toilette verfügen über keramische Bodenbeläge. Die Wände sind tapeziert und gestrichen. Die Fenster haben Doppelverglasung und Rollläden. Die Räume sind mit Radiatoren ausgestattet. Die Liegenschaft wird zurzeit noch mit Gas beheizt. Der individuelle Wärmeverbrauch wird via Fernablesung erfasst. Im Verlauf des Jahres 2026 soll die die Heizung und Warmwasserversorgung komplett erneuert und die Liegenschaft an das kostengünstige Fernwärmenetz angeschlossen werden. Die Investition wird aus den vorhandenen Mitteln im Erneuerungsfond bestritten. Es sind keine Nachzahlungen notwendig.
Ein Kellerabteil und ein Einstellhallenplatz sowie Gemeinschaftsräume wie Waschküche (mit hochwertigen MIELE-Wasch-Automaten ausgestattet) und Trockenraum, die sich nur 6 Parteien teilen, runden das Angebot dieser grossartigen Wohnung ab. Für Besucher stehen auf dem Grundstück zwei Besucherparkplätze zur Verfügung.
Sind Sie neugierig geworden und möchten sich gerne vor Ort von dieser Wohnung begeistern lassen? Gerne zeigen wir Ihnen dieses Objekt und freuen uns auf Ihre Kontaktaufnahme.
Lage und Ort
Die 1974 erbaute, gepflegte Liegenschaft liegt im südwestlichen Teil von Allschwil, Ecke Steinbühlweg/Spitzwaldstrasse, an sonniger und ruhiger Quartierlage, unweit der Grenze zu Basel (ca. 300 m). Die Bushaltestelle (Bettenacker) befindet sich vor dem Haus. Grosse Läden wie MMM Paradies und Coop Letten sowie weitere Dienstleistungsbetriebe wie Arztpraxen, Apotheke, Physio-Center, Tierarzt, Banken und sogar ein JUMBO-Baumarkt, befinden sich ganz in der Nähe. Der Kindergarten Spitzwald ist 190 m und das Schulhaus Gartenhof mit der Primarschule, ist 900 m entfernt. Praktisch am gleichen Ort ist auch die Sekundarschule mit den Schulhäusern Breite und Lettenweg untergebracht. Das Naherholungsgebiet Allschwiler Wald ist nur wenige Minuten entfernt.
Allschwil - früher ein Sundgauer Bauerndorf, heute eine städtische Vorortsgemeinde - ist ein beliebter Wohnort. Geschätzt werden die Nähe zur Kulturstadt Basel und deren Zentrumsleistungen, aber auch zum Landwirtschafts- und Erholungsgebiet. Der beschauliche historische Dorfkern mit seinen gut erhaltenen Riegelhäusern erinnert an das frühere Bauerndorf.
Allschwil ist verkehrstechnisch sehr gut erschlossen. Die Anbindung an den öffentlichen Verkehr (Tramlinie Nr.6 Richtung Basel/Riehen, Bus Nr.33 nach Basel Schifflände oder Schönenbuch, Bus Nr.61 nach Binningen/Oberwil) ist optimal. Via Nordtangente ist Allschwil auch gut an das Autobahnnetz angeschlossen. Der EuroAirport Basel-Mulhouse-Freiburg ist mit dem Auto in 10 Minuten erreichbar.
Allschwil verfügt über ein gutes schulisches Angebot, wobei Kindergarten, Grundschule und Oberstufen abgedeckt sind. Weiterführende Schulen gibt es in Oberwil und Basel.
Eigenschaften
Umgebung
- Wohnquartier
- Geschäfte
- Einkaufsmöglichkeiten
- Bank
- Post
- Restaurant(s)
- Apotheke
- Bahnhof
- Bushaltestelle
- Tramhaltestelle
- Autobahnanschluss
- Kinderfreundlich
- Kindergarten
- Primarschule
- Sekundarschule
- Freibad
- Sportzentrum
- Hallenbad
- Wanderwege
- Radweg
- Fussballplatz
- Museum
- Kino
- Krankenhaus / Klinik
- Arzt
- Pflegeheim
- Nahe einer Zollgrenze
Aussenbereich
- Balkon(e)
- Garten
- Ruhige Lage
- Besucherparkplätze
- Von der Straße
Innenbereich
- Lift
- Einstellhallenplatz
- Offene Küche
- Separate WC's
- Keller
- Unmöbliert
- Doppelverglasung
- Lichtdurchflutet
- Traditionelle Massivbauweise
Ausstattung
- Moderne Küche
- Gemeinschaftswaschküche
- Dusche
Boden
- Fliesen
- Parkett
Zustand
- Sehr gut
Ausrichtung
- Osten
- Westen
Besonnung
- Optimal
- Ganzer Tag besonnt
Aussicht
- Schöne Aussicht
Stil
- Klassisch






















